Der grosse Massstab, die Verkehrsinfrastruktur, markante Wohn- und Gewerbebauten aus den 1960-er bis 1980-er Jahren und die Sportanlagen prägen das Areal. Das schlanke 7-geschossige Schulhaus orientiert sich in Höhe und Querschnitt an den Zeilenbauten der Tüffenwies und bildet einen starken Abschluss zur Autobahn hin. Mit seiner einfachen Form und der repetitiv strukturierten Hülle spricht das Schulhaus eine ähnliche architektonische Sprache wie seine Nachbarn. Die Sichtbarkeit aus der Nähe und aus der Distanz schafft einen selbstbewussten und identitätsstiftenden Bezugspunkt fürs Quartier.
Die stadträumlichen Bedingungen auf dem Areal sind herausfordernd und inspirierend zugleich. Die Lärmsituation und die mikroklimatischen Bedingungen sind zusammen mit Setzungen zur Nachhaltigkeit und zur Reduktion der Komplexität wichtige Eckpunkte für das städtebauliche und typologische Konzept:
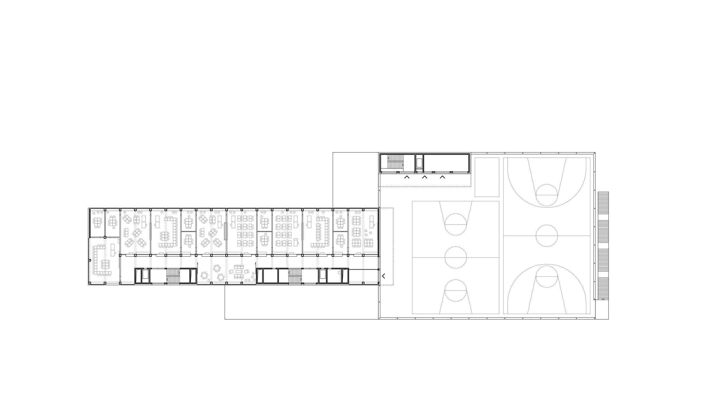
1. Ein schlanker Baukörper entlang der Autobahn:
Der langgezogene Bau fasst den Grünraum mit den Sportplätzen zur Autobahn und schafft einen vom Lärm abgewandten bodenebenen Aussenraum. Die neue Schule öffnet sich zum Quartier hin.
2. Orientierung nach Norden:
Die Unterrichtsräume sind dem kühlen und ruhigen Norden, den Sportplätzen und der Aussicht auf den Hönggerberg zugewandt.
3. Turnhalle und Schulhaus stehen nebeneinander:
Damit bleiben der Aufwand für die Statik, die Erschliessung und den Brandschutz vertretbar. Auf dem Kanalisationstunnel steht nur die Turnhalle und nicht die 7-geschossige Schule.
4. Holzbau:
Der Entwurf basiert auf einem Holzbausystem mit hohem Wiederholungsgrad. Voraussetzung für einen konstruktiv vertretbaren Aufwand ist eine gemäss VKF «mittlere Gebäudehöhe» von maximal 30 m.
5. Nachhaltigkeit:
Mit dem geringen Betonanteil wird der Verbrauch von nicht erneuerbarer Primärenergie gegenüber einer konventionellen Bauweise massiv reduziert.
6. Flexibilität:
Die nutzungsneutrale Grundstruktur lässt auf jedem Geschoss flexible räumliche Konfigurationen zu. Die statische Struktur aus Holz prägt das innere Erscheinungsbild.
Wettbewerb im offenen Verfahren, 2021
Bauherrschaft
Amt für Hochbauten, Zürich
Holzbauingenieur und Brandschutz
Pirmin Jung Schweiz AG, Sargans
Landschaftsarchitektur
Alsina Fernandez Landschaft Architektur BSLA, Zürich
HLKKSE
Amstein + Walthert, Frauenfeld
Bauphysik und Lärmschutz
Wichser Akustik & Bauphysik AG, Zürich
Gebäude
14’000 m² SIA 416 / 67’900 m³ SIA 416
Rendering
Nightnurse, Zürich
Mitarbeit
Michael Ulmer, Teresa Villa






