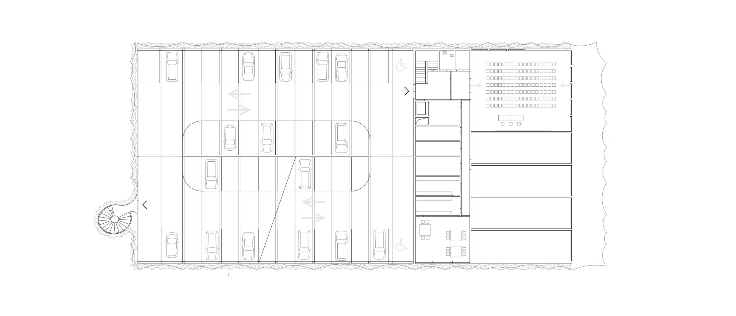
Le parking Park+Ride, complément des transports publics, et la caserne de pompiers sont des infrastructures publiques importantes de Marly et de l'agglomération de Fribourg. Les deux parties du programme sont unies par le fait qu'une utilisation efficace et rapide est décisive : les navetteurs veulent garer leur voiture le plus confortablement possible et prendre le bus rapidement, pour les pompiers, chaque seconde compte en cas d'urgence. La caserne de pompiers et le parking situé au même endroit bénéficient de divers effets de synergie sous un toit commun.
En collaboration avec l'ingénieur, nous avons développé un parking entièrement en bois, y compris les planchers et les surfaces de circulation. L'enveloppe recouverte de plantes grimpantes donne au nouveau bâtiment un visage unique et naturel avec un fort potentiel d'identification. L'orientation et le flux de circulation dans le double sens sont extrêmement simples et intuitifs grâce aux surfaces de stationnement aménagées en rampes. Les trajets de recherche inutiles dans le système à sens unique sont évités, des installations de rampes séparées ne sont pas nécessaires. Le parking sans poteaux entre les places de stationnement promet un grand confort.
Concours de projets d’architecture ouvert, 2023, 4ème prix
Maître de l'ouvrage
Commune de Marly,
Réseau Santé de la Sarine
Ingénieur Civil
Weber + Broennimann AG, Bern
Bâtiment
5’900 m2 SIA 416 / 19’800 m3 SIA 416
Das Park+Ride als Ergänzung zum öffentlichen Verkehr und das Feuerwehrdepot sind wichtige öffentliche Infrastrukturen von Marly und der Agglomeration Fribourg. Beide Programmteile vereint die Tatsache, dass eine effiziente und rasche Benutzung entscheidend ist: Die Berufspendler wollen ihr Auto möglichst komfortabel abstellen und rasch auf den Bus, bei der Feuerwehr zählt im Notfall jede Sekunde. Das Feuerwehrdepot und das Parkhaus am selben Ort profitieren von Synergieeffekten unter dem gemeinsamen Dach.
Zusammen mit dem Ingenieur haben wir ein Parkhaus ganz in Holz entwickelt, einschließlich der Böden bzw. der Fahrflächen. Die mit Kletterpflanzen bewachsene Hülle gibt dem Neubau ein unverwechselbares und natürliches Gesicht mit hohem Identifikationspotential. Die Orientierung und Verkehrsführung im Gegenverkehr sind mit den als Rampen angelegten Parkflächen überaus einfach und intuitiv. Unnötige Suchfahrten im Einbahnsystem werden vermieden, separate Rampenanlagen sind nicht nötig. Das Parkhaus ohne Stützen zwischen den Parkplätzen verspricht einen hohen Komfort.
Wettbewerb im offenen Verfahren,
2023, 4. Preis
Bauherrschaft
Commune de Marly,
Réseau Santé de la Sarine
Bauingenieur
Weber + Broennimann AG, Bern
Gebäude
5’900 m2 SIA 416 / 19’800 m3 SIA 416






