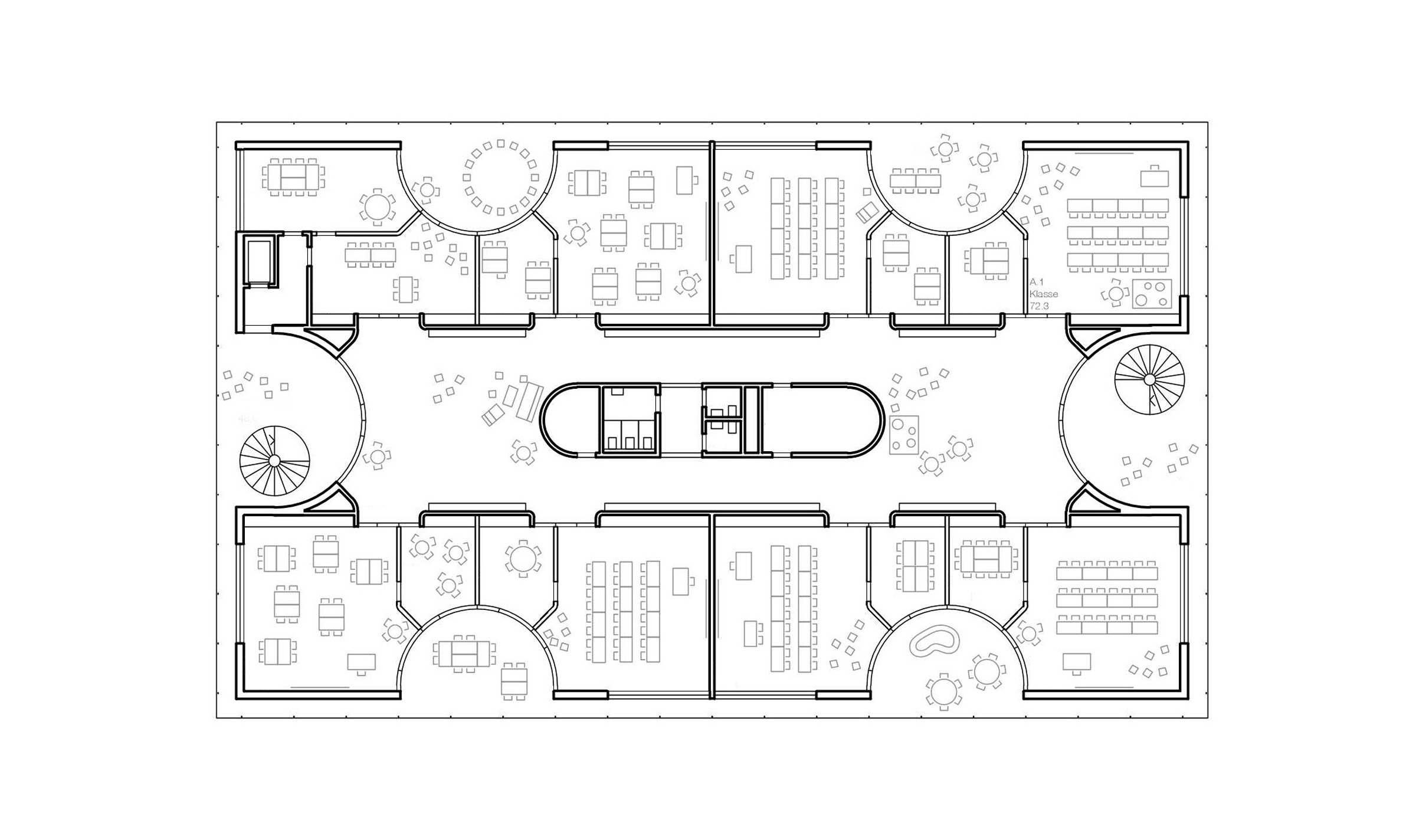
Die Schulanlage Rietlen besteht aus mehreren auf einem weitläufigen Gelände verteilten Trakten. Die dezentrale Anordnung der Gebäude, die allseitige Zugänglichkeit der Schulgebäude und die grosszügigen, verschiedenartigen Aussenräume ergeben eine stimmige und entspannte Schulanlage. Dieses Ensemble galt es mit einem grossen Neubau mit Unterrichtsräumen, Tagesstruktur und einer Turnhalle zu erweitern. Die Dimension des Neubaus erlaubt eine einfache und funktionale Organisation mit einem starken Aussenraumbezug. Eine umlaufende Balkonschicht schützt die Fassade und beschattet im Sommer die Klassenzimmer. Halbkreisförmige Einschnitte bilden gedeckte Zugänge und attraktive Aussenbereiche für die Unterrichtsräume. Darüber hinaus ermöglichen die Einschnitte zweiseitig belichtet Klassenzimmer, welche effizient quer gelüftet werden können.
Wettbewerb im offenen Verfahren, 2023, 5. Preis
Bauherrschaft
Gemeinde Niederglatt
GEBÄUDE
3’800 m2 SIA 416 / 16’100 m3 SIA 416
Mitarbeit
Michael Ulmer






