Le site du projet se trouve au cœur du village de Courtaman, qui a fusionné avec la commune de Courtepin limitrophe. La réorganisation au niveau communal permettra de ramener d'importantes fonctions publiques à Courtaman.
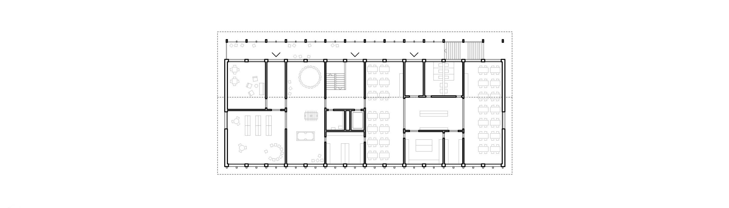
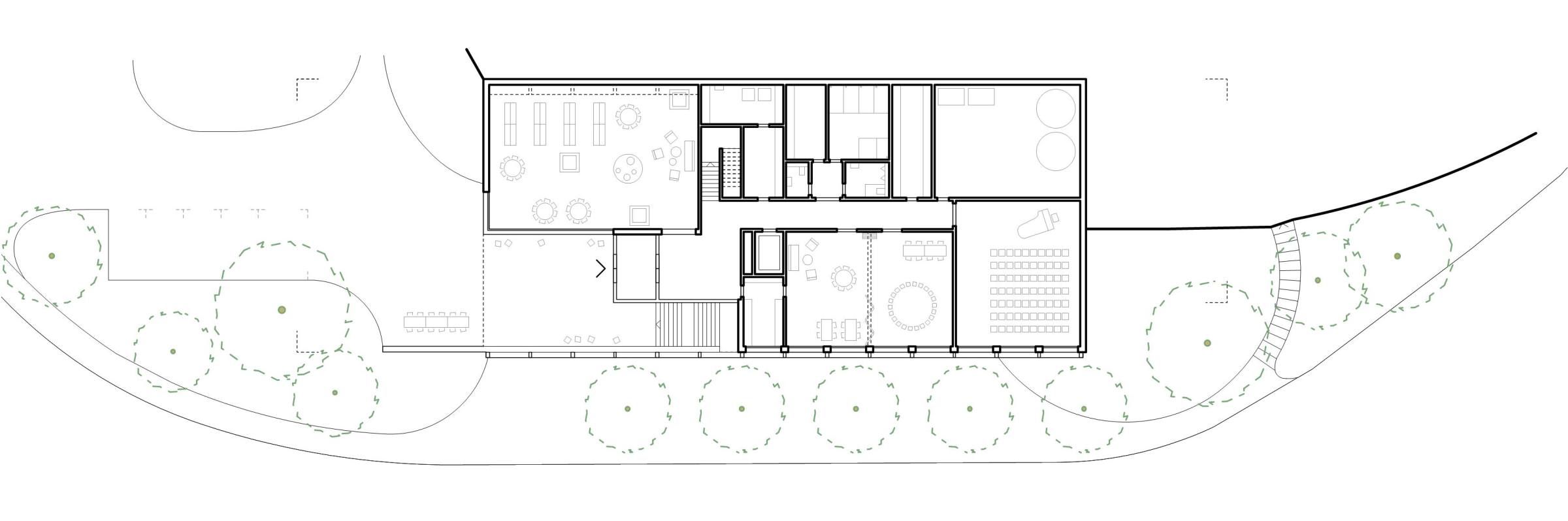
Le programme comprend des locaux pour les associations, y compris la ludothèque, une crèche, l'accueil extrascolaire pour les enfants du cycle primaire et un parking. Le projet réunit tous les éléments sous un grand toit. Il renonce à l’idée d’un « vide minéral urbain » comme futur centre de la localité, au profit d’une constellation de sous-espaces spécialisés articulés autour du bâtiment, qui devient l'élément identitaire de la nouvelle centralité. Le bâtiment est bien visible de la rue principale et profite de la topographie pour former trois niveaux d'entrée. Le talus le long de la route est retaillé de manière à créer une esplanade généreuse et facilement accessible. Côté rue, le nouveau bâtiment s'élève sur quatre étages. Côté pente, vers les maisons individuelles, la maison comporte deux étages. Ici, une veranda s'étendant sur toute la longueur du bâtiment protège les locaux de la crèche et de l'accueil des enfants plus âgés des intempéries et du rayonnement solaire.
Le bâtiment de forme simple, avec sa façade finement rythmée et ses larges avant-toits, s'intègre de manière élégante dans le quartier. Les étages du socle, en contact avec le terrain, sont en béton. Les deux étages supérieurs sont entièrement réalisés en bois.
Concours de projets d’architecture ouvert, 2024, 1er prix
Maître de l'ouvrage
Commune Courtepin FR
Bâtiment
3’200 m² / 11’300 m³ SIA 416
Collaboration
Michael Ulmer
Der Standort für das neue Dorfzentrum liegt zentral in Courtaman, das mit der angrenzenden Gemeinde Courtepin fusioniert hat. Mit der Neuorganisation auf Gemeindeebene sollen wichtige öffentliche Funktionen nach Courtaman zurückkommen. Das Programm umfasst Räume für die Vereine inkl. Ludothek, eine Kinderkrippe, die ausserschulische Betreuung für die Primarschüler und eine Parkierungsanlage.
Das Projekt vereint alle Programmteile unter einem grossen Dach und verzichtet auf die Idee eines von mehreren Gebäuden gefassten städtischen Platzes. Stattdessen setzt es auf ein Zusammenspiel von kleineren ums Gebäude herum angeordneten Aussenräumen. Das Haus steht gut sichtbar an der Hauptstrasse und nutzt die Topografie zur Bildung von drei Eingangsebenen. Die Böschung entlang der Strasse wird zurückgeschnitten, so dass ein grosszügiger und gut zugänglicher Vorplatz mit einem hohen Öffentlichkeitsgrad entsteht. Strassenseitig tritt der Neubau viergeschossig in Erscheinung. Hangseitig zu den Einfamilienhäusern ist das Haus zweigeschossig. Eine über die ganze Gebäudelänge gehende Laube schützt die Räume der Krippe und der Betreuung für die älteren Kinder vor Witterungseinflüssen und vor Sonneneinstrahlung.
Das einfach geschnittene Gebäude mit seiner fein rhythmisierten Fassade und den breiten Vordächern integriert sich auf selbstverständliche Weise ins Quartier. Die Sockelgeschosse mit Kontakt zum Terrain bestehen aus Beton, die beiden oberen Geschossen bestehen aus Holz.
Wettbewerb im offenen Verfahren,
2024, 1. Preis
Bauherrschaft
Gemeinde Courtepin FR
Gebäude
3’200 m² / 11’300 m³ SIA 416
MItarbeit
Michael Ulmer












