Sekundar­schul­zentrum Lärche

Sekundar­schul­zentrum Lärcheclass=

Sekundar­schul­zentrum Lärche

158
Arbon


Auszug aus dem Jurybericht:

Ausgehend von der Idee eines geschützten, zentral gelegenen Pausenhofs entwickelt das Projekt für Schule und Sporthalle zwei eigenständige Baukörper. Diese sind in einer spannungsvollen Komposition angeordnet, wobei ihre Proportionen und der Ausdruck jeweils auf ihre spezifische Nutzung abgestimmt sind. Gemeinsam bilden sie einen polygonalen Pausenhof, der durch ein Wegenetz von beiden Seiten an das umliegende Quartier angebunden ist. Der schlanke, längliche Schulbaukörper ermöglicht eine optimale Belichtung der Innenräume und schützt zugleich das Wohnquartier vor zusätzlichem Lärm. Die Sporthalle, entlang der Kantonsstraße positioniert, schützt durch ihre Lage den Außenbereich der Schule. Die Dachflächen werden als Terrassen und für den Allwetterplatz genutzt und bieten somit zusätzliche Aufenthaltsmöglichkeiten im Freien.

Die beiden Baukörper zeichnen sich durch eine grundlegend unterschiedliche Konstruktion und Gestaltung aus. Die Schule ist als leichter, modularer Holzbau konzipiert, der auf maximale Flexibilität für zukünftige Anforderungen ausgelegt ist. Im Kontrast dazu steht die teilweise unterirdische Halle als Massivbau. Zur Straßenseite hin wird die Präsenz des niedrigeren Baukörpers durch eine geschickt gestaltete Zuschauertribüne verstärkt, die zugleich großzügigen Lichteinfall in die Halle ermöglicht.

Durch die Setzung der Neubauten spannt sich über die Diagonale eine Freiraumfigur auf, die an ihren Enden die Schülerschaft geschickt in Empfang nimmt. Das Projekt versteht es, Freiflächen maximal zu nutzen und eine attraktive Schulumgebung zu schaffen.

Durch die klare Trennung der Nutzungsbereiche entstehen im Erdgeschoss von Schule und Sporthalle einladende, öffentlich zugängliche Zonen. Das offene Erdgeschoss der Sporthalle, ausgestattet mit Zuschauertribüne und Kiosk, schafft helle, freundliche Bereiche für Sportler und Besucher und ermöglicht eine flexible Nutzung, sodass Sportveranstaltungen unabhängig vom Schulbetrieb stattfinden können.

Die Schule selbst bietet entlang ihrer Längsseiten flexibel unterteilbare Raumschichten mit jeweils einem Gruppenraum für je zwei Klassenzimmer. Die breite Mittelzone kann für offene Unterrichtsformen genutzt werden.

Die kompakten Baukörper mit jeweils einfachen, nutzungsoptimierten Strukturen ermöglichen eine wirtschaftliche und nachhaltige Bauweise. Die räumliche Trennung der Gebäudefunktionen reduziert hierbei die Komplexität der einzelnen Gebäude.

Der Holzbau ist im Sinne des „Design for Disassembly“ durch Steckverbindungen sowie die konsequente Systemtrennung rückbaubar und wiederverwendbar geplant.

Das Projekt besticht durch seine überzeugende städtebauliche Einbindung und den zentralen Pausenhof als Herzstück der Anlage. Der öffentliche Charakter des Erdgeschosses und die vielseitig nutzbare Sporthalle bieten Raum für unterschiedliche Anlässe. Die klare räumliche Struktur und deren konstruktive Lösung schaffen ein Gebäude, das zukünftigen Unterrichtsformen flexibel gerecht werden kann.


Wettbewerb im selektiven
Verfahren, 2024, 1. Preis

Bauherrschaft

Sekundarschulgemeinde Arbon

ARCHITEKTUR

ARGE Isler Gysel / Gutschoep, Zürich

Landschaftsarchitektur

Heinrich Landschaftsarchitektur GmbH, Winterthur

Holzbauingenieur, Bauphysik, Akustik und Brandschutz

Pirmin Jung Schweiz AG, Sargans

Bauingenieur

Ribi Blum AG, Romanshorn

Elektroingenieur

Bühler + Scherler AG, Arbon

HLKKS

Amstein&Walthert, Frauenfeld

Kostenplanung und Bauleitung

Perita AG, St. Gallen

GEBäude

12'000 m2 SIA 416 / 53'900 m3 SIA 416

MITARBEIT 

Michael Ulmer (Wettbewerb)

Modellbild: Grosse begrünte Freiflächen, Wohnbauten unterschiedlicher Grösse und ausgedehnte Gewerbebauten umfassen das Areal.
Modellbild: Grosse begrünte Freiflächen, Wohnbauten unterschiedlicher Grösse und ausgedehnte Gewerbebauten umfassen das Areal.
Situationsplan: Die Konzentration der Hauszugänge zur Arealmitte hin schützt die Umgebung vor allfälligen Lärmemissionen.
Situationsplan: Die Konzentration der Hauszugänge zur Arealmitte hin schützt die Umgebung vor allfälligen Lärmemissionen.
Modellbild: Beim Durchqueren des Schulareals entstehen spannungsreiche räumliche Konstellationen.
Modellbild: Beim Durchqueren des Schulareals entstehen spannungsreiche räumliche Konstellationen.
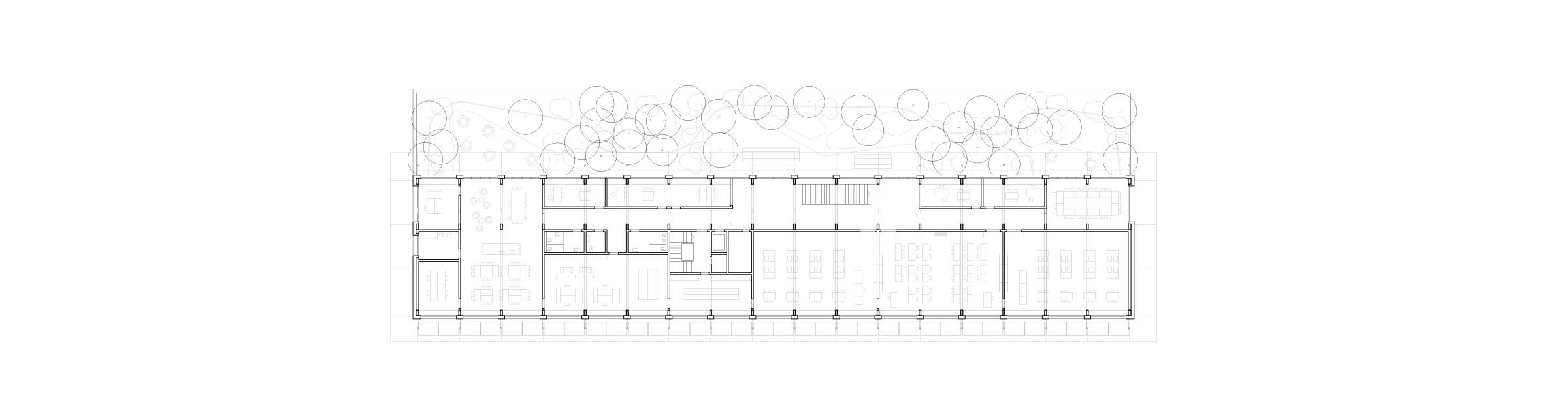
Erdgeschoss: Der V-förmige Hofraum wird - von den Neubauten zweiseitig gefasst - zum zentralen Pausenhof, an dem die Eingänge zum Schulhaus und zur Sporthalle zu liegen kommen.
Erdgeschoss: Der V-förmige Hofraum wird - von den Neubauten zweiseitig gefasst - zum zentralen Pausenhof, an dem die Eingänge zum Schulhaus und zur Sporthalle zu liegen kommen.
Die Vegetationsinseln auf dem Pausenplatz sind Träger von mittelkronigen Baumgruppen aus standortgerechten und klimaanpassungsfähigen Baumsorten.
Die Vegetationsinseln auf dem Pausenplatz sind Träger von mittelkronigen Baumgruppen aus standortgerechten und klimaanpassungsfähigen Baumsorten.
Querschnitt: Die ins Terrain eingebettete Sporthalle mit dem Hartplatz auf dem Dach wird zweiseitig belichtet.
Querschnitt: Die ins Terrain eingebettete Sporthalle mit dem Hartplatz auf dem Dach wird zweiseitig belichtet.
Modellbild: Die Tribüne des Hartplatzes zur St. Gallerstrasse hin schützt die Schulanlage und die Aussenräume vor Lärm.
Modellbild: Die Tribüne des Hartplatzes zur St. Gallerstrasse hin schützt die Schulanlage und die Aussenräume vor Lärm.
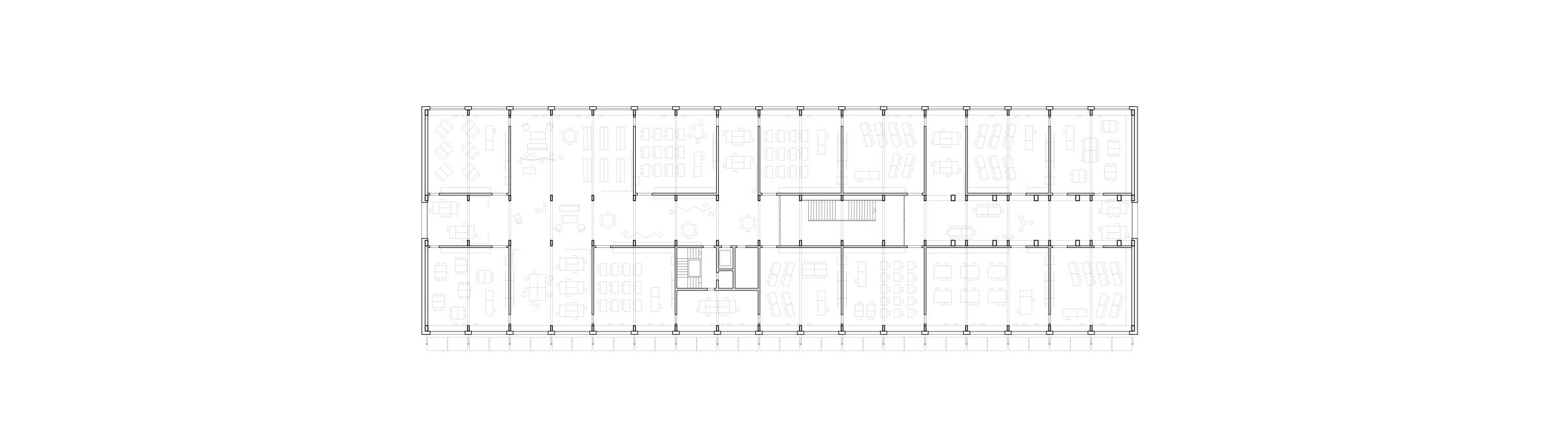
Regelgeschoss mit frei kombinierbaren Unterrichts- und Gruppenräumen
Regelgeschoss mit frei kombinierbaren Unterrichts- und Gruppenräumen
Dachgeschoss: Räume für Lehrkräfte und für den Kochunterricht
Dachgeschoss: Räume für Lehrkräfte und für den Kochunterricht
Strukturschemata: Innerhalb der Grundstruktur sind unterschiedliche, offenere oder geschlossenere Raumkonfigurationen denkbar.
Strukturschemata: Innerhalb der Grundstruktur sind unterschiedliche, offenere oder geschlossenere Raumkonfigurationen denkbar.
Längsschnitt: Rechts im Erdgeschoss befindet sich die ins Gelände abgesenkte Aula.
Längsschnitt: Rechts im Erdgeschoss befindet sich die ins Gelände abgesenkte Aula.
Die regelmässige und durchgehende Tragstruktur prägt die Räume. Mit nichttragenden Trennwänden, Vorhängen oder Verglasungen entstehen flexibel nutzbare und anpassbare Raumaufteilungen.
Die regelmässige und durchgehende Tragstruktur prägt die Räume. Mit nichttragenden Trennwänden, Vorhängen oder Verglasungen entstehen flexibel nutzbare und anpassbare Raumaufteilungen.