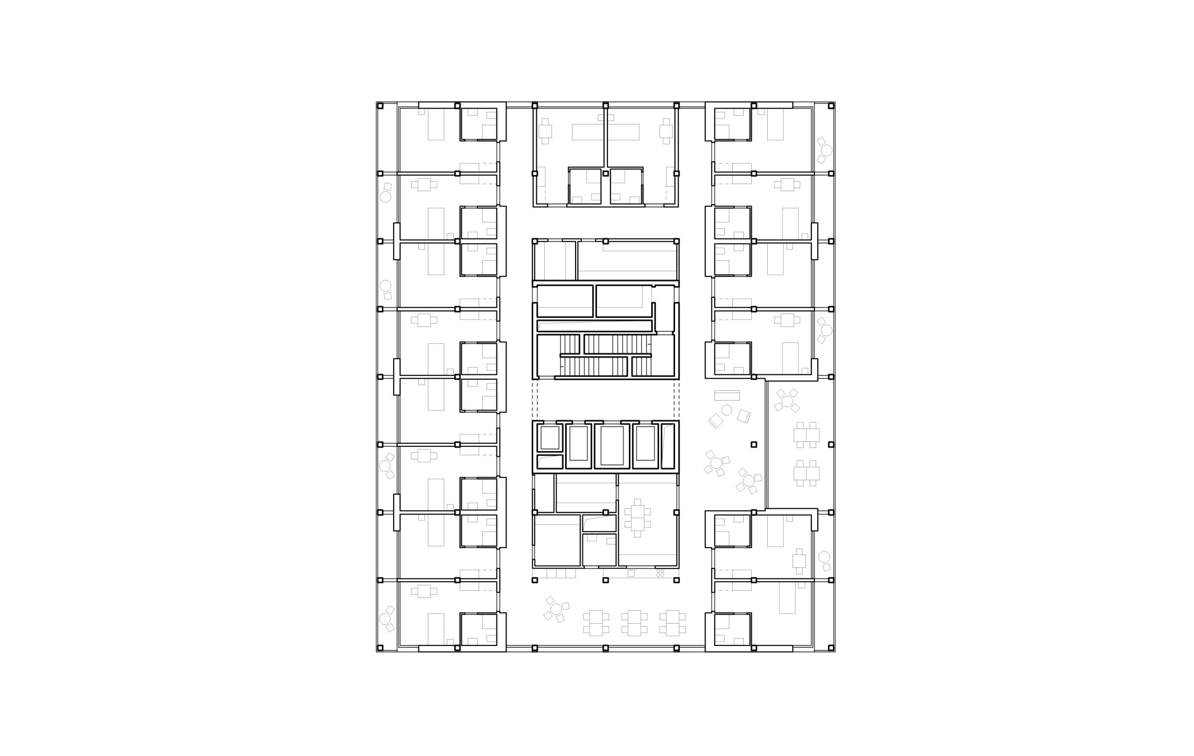
Der Neubau des Gesundheitszentrums mit Alterswohnungen bildet den Auftakt im Entwicklungsgebiet an der Thurgauerstrasse im Norden von Zürich. Das Projekt überträgt das klassische städtebauliche Prinzip von «Strasse – Haus – Wohnung» in die Vertikale. Die Struktur des Hochhauses besteht aus gestapelten, überschaubaren Mehrfamilienhauseinheiten, die wie Häuser an einer Strasse um einen zentralen Erschliessungskern organisiert sind. Doppelgeschossige Loggien als Begegnungszonen fördern soziale Interaktionen und wirken der Anonymität im Hochhaus entgegen.
Das Gebäude besteht aus einer hybriden Holz-Beton-Konstruktion. Der Sockelbau bis zum 6. Obergeschoss ist in Massivbauweise ausgeführt (Beherbungsbetrieb Typ A). Darüber folgen im Wechsel drei Holzgeschosse und eine sogenannte Superdecke aus Beton, die jeweils die darüberliegenden Einheiten trägt. Diese Systematik optimiert den Materialverbrauch und ermöglicht flexible und in Zukunft adaptierbare Grundrisse. Durch die Kombination von Holz, Recyclingbeton und emissionsarmen Zementsorten wird die CO₂-Bilanz im Vergleich zum konventionellen Massivbau um etwa die Hälfte reduziert. Das dezentrale Haustechnikkonzept versorgt jeweils drei Geschosse separat und minimiert damit den Platzbedarf für Schächte.
Die Fassadengestaltung bildet mit ihrem Raster die innere Struktur des Hauses ab. Die Betonung der Deckenstirnen der sogenannten Superdecken in der Fassade fasst jeweils drei Geschosse zusammen und macht die innere Stapelung aussen sichtbar. Es entsteht eine übergeordnete Gliederung, die dem Gebäude trotz seiner Grösse eine angenehme Massstäblichkeit verleiht. Historische Beispiele für diesen Gestaltungsansatz finden sich etwa bei der grossmassstäblichen Siedlung Le Lignon in Genf oder bei Bauten von Auguste Perret.
Wettbewerb im offenen Verfahren, 2025,
7. Preis
Bauherrschaft
Amt für Hochbauten, Zürich
Landschaftsarchitektur
Heinrich Landschaftsarchitektur
GmbH, Winterthur
Bauingenieur
Dr. Lüchinger+Meyer, Zürich
HLKKSE
Amstein+Walthert, Frauenfeld
GEBäude
23'500 m2 SIA 416 / 76'100 m3 SIA 416












